agence Immobilière 3A Immobilier
Retour aux annonces  
lien bien facebook | lien bien google plus | lien bien twitter | lien bien Linkdin

Maison - 859/Mois CC   EPRON (14610) - Référence 47493 Cottages de na

  • Maison EPRON (14610) 3A Immobilier
  • Maison EPRON (14610) 3A Immobilier
  • Current
  • Maison EPRON (14610) 3A Immobilier
  • Maison EPRON (14610) 3A Immobilier

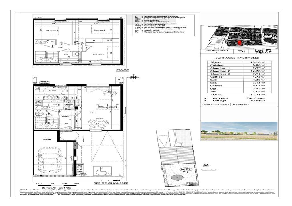
Maison mitoyenne 4 pièces Epron, rue Eugène Ducretet

Maison de 81,33m² avec jardin de 170m² environ
Elle se compose au rez de chaussée d'une entrée, d'un séjour de 24m² avec cuisine ouverte, d'un cellier et d'une salle d'eau avec wc. A l'étage : 3 chambres de 9.97m², 12.28m² et de 9.91m², salle de bain et wc.
Le logement dispose également d'un garage

Le chauffage et l'eau (gaz) sont individuels.

Disponibilité 19 janvier 2026

Loi PINEL et Assurance Loyer impayé

Réf 47493 Cottages de Nacre

Informations

Référence : 47493 Cottages de na
Nb. de pièces : 4
Nb. de chambre : 3
Nb place parking : 1
Nb place parking (ext.) : 1
Nb. Étage : -1
Surface habitable : 81.33 m²
Stationnement : Parking et Garage
Année de construction : 2019



- Charges : 32 € (Prévisionnelles Mensuelles)
- Dépôt de Garantie : 827.22 €
- Honoraires Charge Locataire : 1066 € TTC
Dont 243 € TTC pour l'état des lieux

Prestations

Type de chauffage : Individuel Gaz
État général : Bon état

Appartement F3 CAEN (14000) 3A Immobilier

Appartement F3

669/Mois CC

CAEN (14000)
Appartement F3 CAEN (14000) 3A Immobilier

Appartement F3

885/Mois CC

CAEN (14000)