agence Immobilière 3A Immobilier
Retour aux annonces  
lien bien facebook | lien bien google plus | lien bien twitter | lien bien Linkdin

Appartement F2 - 640/Mois CC   CORMELLES LE ROYAL (14123) - Référence 68972 Clos Boisé

  • Appartement F2 CORMELLES LE ROYAL (14123) 3A Immobilier
  • Appartement F2 CORMELLES LE ROYAL (14123) 3A Immobilier
  • Current
  • Appartement F2 CORMELLES LE ROYAL (14123) 3A Immobilier
  • Appartement F2 CORMELLES LE ROYAL (14123) 3A Immobilier

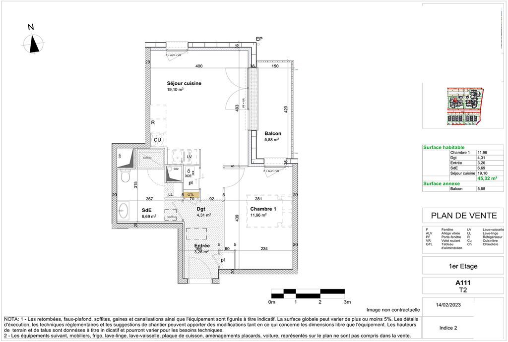
A CORMELLES LE ROYAL, dans la résidence neuve DOMAINE DU CLOS BOISE

Appartement 2 pièces de 45.32m² situé au 1er étage. Il se compose d'une entrée, d'un séjour avec cuisine aménagée et accès au balcon exposé Est, d'une chambre et salle d'eau avec wc.
Une place de parking complète le lot.

Chauffage et eau chaude individuel gaz.

Disponible de suite

Loi Pinel et Assurance Loyer impayé

Réf 68972 Clos Boisé

Informations

Référence : 68972 Clos Boisé
Nb. de pièces : 2
Nb. de chambre : 1
Nb place parking (ext.) : 1
Étage : 1
Nb. Étage : 2
Surface habitable : 45.32 m²
Neuf : Oui
Stationnement : Parking
Année de construction : 2025



- Charges : 40 € (Prévisionnelles Mensuelles)
- Dépôt de Garantie : 600 €
- Honoraires Charge Locataire : 588 € TTC
Dont 135 € TTC pour l'état des lieux

Prestations

Type de chauffage : Individuel Gaz
État général : Neuf
Standing : Haut

Appartement F2 CORMELLES LE ROYAL (14123) 3A Immobilier

Appartement F2

635/Mois CC

CORMELLES LE ROYAL (14123)
Appartement F3 EPRON (14610) 3A Immobilier

Appartement F3

836/Mois CC

EPRON (14610)